日本 · 大阪
新房
房产性质
现房
房源状态
酒店
房源类型
永久产权
产权类型
N/A
产权年限
2024年9月30日
交房时间
占地面积
196.03 ㎡
使用面积
999.27 ㎡
卧室数量
N/A
卫生间数量
N/A
总楼层数
N/A
单价
N/A
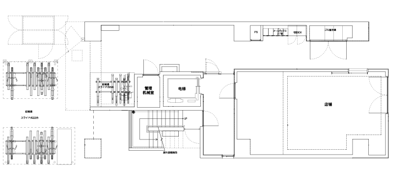
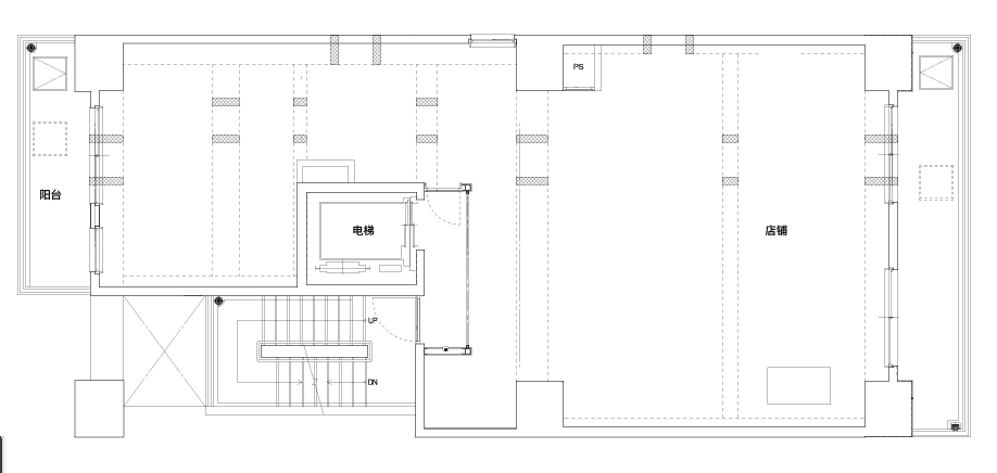
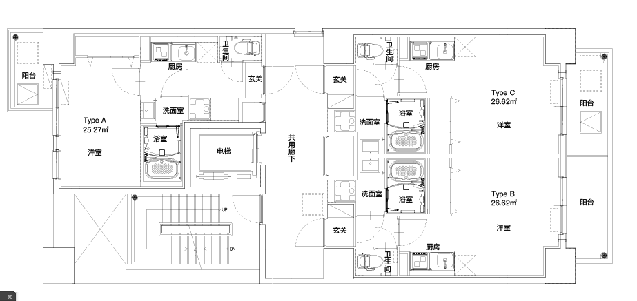
项目名称:難波整栋 筑年:2024年3月建成 8月改装完成 9月试运营 面积:土地196.03㎡ | 延床999.94㎡ 构造:RC造10层 | 住居*24户+店铺*2户 住居户型:1K*8户*25.27㎡ | 1R*16户*26.62㎡ 用途地域:准工业地域 建蔽率:60% 容积率:400% 售价:10亿日元
交通: 南海汐見橋線 芦原町駅 徒步4分 JR大阪環状線 芦原橋駅 徒步4分 Osaka Metro千日前線 桜川駅 徒步5分 JR大和線 難波駅 徒步10分
核心优势 •难波商圈800M直连 项目位于大阪核心5区之一的浪速区,徒步10分即达难波商圈。 作为大阪的商业中心之一,难波商圈以其繁华的购物街、丰富的美食和多样的娱乐设施吸引着无数游客;心斋桥筋商店街、道顿堀与难波商圈连接,共同组成关西都市资本狂欢的终极目的地; 心斋桥筋商店街是大阪最长的商业街之一,两旁林立着各类时尚品牌店、传统工艺品店和大型百货公司;道顿堀则是大阪夜生活的中心,以其丰富的美食和繁华的街景闻名遐迩。 •最近地铁仅徒步4分,1KM内4站4线 项目周边交通配套非常齐全,最近的【芦原町駅】仅450M,徒步10分范围内有4条线路可以使用,直通各大商圈及景点,13分直达大阪站、11分可达梅田站,大阪繁华的商业娱乐资源触手可及,是不可多得的黄金投资产品。 •新筑现房,即买即收租 项目为 RC造 ` 10层 ` 住居*24户+店铺*2户构造,住居主要户型为1K*8户*25.27㎡、1R*16户*26.62㎡,现作为民宿运营中,可以搭配办理日本高级人才签证,现金流收益+移民身份轻松兼得。 •3种运营方式,自由灵活赚收 ①自主运营:预计收益5.5% ②无忧保底:3年包租可续约,到手5.5%净收益 ③委托管理:收取委托管理费,剩余收益全额交付








